Imóvel Comercial à venda
Avenida Paulista, 1374 - Bela Vista - São Paulo / SP
Este imóvel encontra-se ocupado no momento.
Descrição do imóvel
Matrícula do imóvel:
65.806 do 4º CRI - São Paulo/SP
Em destaque no texto acima os trechos que sofreram alterações.
Última atualização 11/03/2026 às 10:33:35
Visitação
Mediante disponibilidade de agendamento através do email visitas@portalzuk.com.br.
Documentos
Proximidades

Qual é a melhor cidade do interior de São Paulo para morar?
São tantas encantadoras cidades do interior de São Paulo que fica difícil escolher a melhor opção para morar, não é mesmo? Confira abaixo as opções que trouxemos hoje!
Leia Mais



















Observações
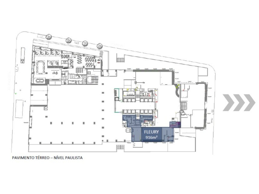
Área ociosa (ex-agência): 1.200 m², com 22 vagas de garagem.
Área locada ao Grupo Fleury (Rede A+): 916 m², com 17 vagas de garagem.
> Importante:
O imóvel está parcialmente locado ao Grupo Fleury, com contrato vigente até 2032.
As vagas de garagem estão em processo de demarcação e podem sofrer alteração.
A área da agência Select Santander NÃO faz parte da venda e terá matrícula própria (desmembrada).
Dossiê: venda direta